Best Vastu Planners in Yelahanka New Town, Bangalore
Vastu Plans
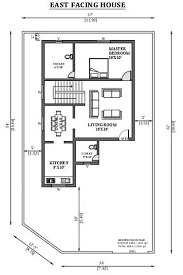
Vastu shastra is an ancient Indian science of construction and architecture. The main goal is to balance Agni/Fire, Air/Vayu, Space, Earth, and Water; the five elements of nature so that we can live happily enjoying health, wealth, and peace. We are Professional Vastu Planner and Civil Engineer and our Vastu Experts provides you the proper guidance to construct your home at proper Vastu Plans.
325
Revenue in 2017 (Million)
525
Collaegues & Counting
302
Successfully Project
25
Year of experience
The Team
Our Experts

Mike Rich
Lead Architect

Jenny Smith
Head Engineer (US)

George Doe
Head Engineer (CN)

Maria Jay
Head Engineer (AU)
Sustainability
Committed To Keep People Healthy & Safe
We Follow Best Practices
- Sustainablility
- Project On Time
- Modern Technology
- Latest Designs
Request a Quote
Durga Constructions
Why Choose Us
We make designing and building your new project a full-service, stress-free experience. Your time is valuable, so we’re here to handle everything from start to finish.
From your first consultation with us, our team will openly communicate with you every step of the way to ensure you feel confident with your design and build.
We keep our pricing and quoting accurate, so that you’re never left guessing about any additional hidden costs.